霸王Peggy
@haohpeggy
Thu, Apr 29, 2021 10:05 AM
21
13
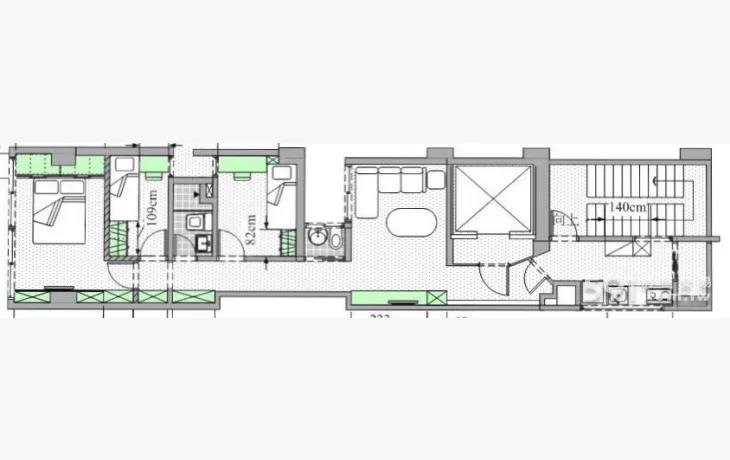
Aeson - 據說這就是高嘉瑜拿來質詢花敬群的高公設比建案,東湖康樂街【菁品】... https://...
結果高嘉瑜用來質詢花敬群的公設比54%的特例根本也不是什麼用華而不實的大廳視聽室會議室健身房來擠壓實坪的不良建案,而是基地太小為滿足消防法規要求的不得不然。
如果畸零地住宅大樓就會造成這種超高公設比的特例,那新建案的公設比偏高很可能並非是那些賣相性的設施排擠了室內實坪,而是可開發的大面積基地本來就越來越少?
北極熊
@polorbear
Thu, Apr 29, 2021 11:22 AM
高佳諭開始垃圾
阿華-ESG電信
@minuture
Thu, Apr 29, 2021 11:37 AM
這棟樓的格局好奇怪
溯少,Kai
@huangsui
Thu, Apr 29, 2021 4:10 PM
現在都市計畫內的很多新建築也會被要求機車停車位
甚至是一戶兩車位
但機車位沒辦法賣
所以機車位納入公設比
還有現在單元坪數都小
造成一層多戶的住宅大樓多
梯廳走廊空間需求變大也增加公設比
太多原因了!
載入新的回覆
如果畸零地住宅大樓就會造成這種超高公設比的特例,那新建案的公設比偏高很可能並非是那些賣相性的設施排擠了室內實坪,而是可開發的大面積基地本來就越來越少?
甚至是一戶兩車位
但機車位沒辦法賣
所以機車位納入公設比
還有現在單元坪數都小
造成一層多戶的住宅大樓多
梯廳走廊空間需求變大也增加公設比
太多原因了!