Domo☆🦮
@SOSOBI
Thu, Apr 29, 2021 5:14 AM
8
3
喂
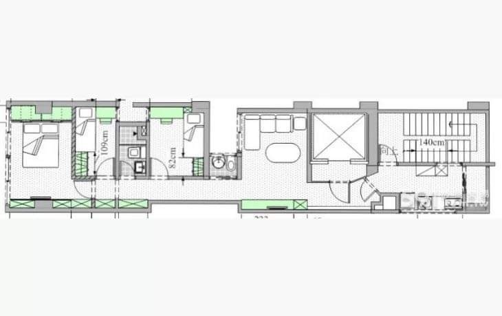
Aeson - 據說這就是高嘉瑜拿來質詢花敬群的高公設比建案,東湖康樂街【菁品】... https://...
據說這就是高嘉瑜拿來質詢花敬群的高公設比建案,東湖康樂街【菁品】...
【菁品】-6筆交易紀錄,實價登錄的平均成交價為41.33萬/坪 - 樂居
這種畸零地蓋的紙片屋,電梯和樓梯就佔建案面積快一半了,公設比能不高嗎?
不要樓梯不要電梯,那上下樓用隱形的翅膀來飛啊
挑這種特殊建案當成通例來質詢,這不叫作秀,什麼叫作秀?
花部長這樣對她說,換來黃白粉謾罵花是建商狗
掰噗~
@baipu
說
Thu, Apr 29, 2021 5:14 AM
我也想不透
esther俺のいない日本でな
@estherlingyun
說
Thu, Apr 29, 2021 5:27 AM
次長說的是事實啊。
【永康壹號】-大安區預售屋-建案價格-建案詳情-591新建案
各位,這裡有個新建案,公設比才36%左右喔。
Domo☆🦮
@SOSOBI
Thu, Apr 29, 2021 5:28 AM
esther俺のいない日本でな
: 高甲瑜為了做秀
吾皆娑婆 三千鴉殺浮屠之影
@surname_chikamui
Thu, Apr 29, 2021 5:29 AM
我有撈到噗浪上有人推高嘉瑜XDDD
esther俺のいない日本でな
@estherlingyun
說
Thu, Apr 29, 2021 5:29 AM
Domo☆🦮
: 我知道,我一向對她很感冒。
Domo☆🦮
@SOSOBI
Thu, Apr 29, 2021 5:30 AM
Aeson - 新大樓公設比為什麼30%以上這種事,有看過平面圖的人就知道了。 只要建案基地面積不是特別...
新大樓公設比為什麼30%以上這種事,有看過平面圖的人就知道了。
只要建案基地面積不是特別大,大廳+梯廳+兩座樓梯+兩座電梯+排煙室+管道間+蓄水池+水塔+機電設備室+防空避難空間+車道+垃圾處理間等等,要符合集合式住宅法規設施要求,加一加公設比很容易就超過30%。
「蘆洲大囍市社區火災造成16死68傷後,促使了幾項法規的修改。2005年修正《建築技術規則》,規範八層以上住宅建築須設置兩座安全梯。加強設置逃生與消防設施,間接地調高了住宅公設比。」
新房子公設比為何總是30%起跳?
新房子公設比為何總是30%起跳?揭公設比居高不下真實原因,竟來自17年前這場意外-風傳媒
esther俺のいない日本でな
@estherlingyun
說
Thu, Apr 29, 2021 5:33 AM
Thu, Apr 29, 2021 5:34 AM
Domo☆🦮
: 謝謝噗主整理,這篇我也有看到,因此對公設比多少是有認知的。就覺得「高」很煩,但是一堆人愛
Domo☆🦮
@SOSOBI
Thu, Apr 29, 2021 5:37 AM
esther俺のいない日本でな
: 高甲魚真的很北爛
吃
酸酸甜甜的橘子
@coco565
Thu, Apr 29, 2021 5:43 AM
格局有夠爛
dokugo
@dokugo
Thu, Apr 29, 2021 6:06 AM
Domo☆🦮
: 黃白粉不放棄買房,也是助長建商阿
憐夜 休閒中
@rennight13
Thu, Apr 29, 2021 6:10 AM
只能在港湖的拉基
esther俺のいない日本でな
@estherlingyun
說
Thu, Apr 29, 2021 8:11 AM
Thu, Apr 29, 2021 8:11 AM
【台大舒曼】-大安區新成屋-建案價格-建案詳情-591新建案
喔,這是我們家附近的新成屋,嗯,公設超過40%。港湖女神要不要來關注一下?
Domo☆🦮
@SOSOBI
Thu, Apr 29, 2021 8:53 AM
esther俺のいない日本でな
:
吾皆娑婆 三千鴉殺浮屠之影
@surname_chikamui
Thu, Apr 29, 2021 9:16 AM
我比較在意他甚麼時候要退民進黨
Domo☆🦮
@SOSOBI
Thu, Apr 29, 2021 9:18 AM
吾皆娑婆 三千鴉殺浮屠之影
: 怎麼可以退
退了就沒資源
載入新的回覆
據說這就是高嘉瑜拿來質詢花敬群的高公設比建案,東湖康樂街【菁品】...
【菁品】-6筆交易紀錄,實價登錄的平均成交價為41.33萬/坪 - 樂居
這種畸零地蓋的紙片屋,電梯和樓梯就佔建案面積快一半了,公設比能不高嗎?
不要樓梯不要電梯,那上下樓用隱形的翅膀來飛啊
挑這種特殊建案當成通例來質詢,這不叫作秀,什麼叫作秀?
花部長這樣對她說,換來黃白粉謾罵花是建商狗
新大樓公設比為什麼30%以上這種事,有看過平面圖的人就知道了。
只要建案基地面積不是特別大,大廳+梯廳+兩座樓梯+兩座電梯+排煙室+管道間+蓄水池+水塔+機電設備室+防空避難空間+車道+垃圾處理間等等,要符合集合式住宅法規設施要求,加一加公設比很容易就超過30%。
「蘆洲大囍市社區火災造成16死68傷後,促使了幾項法規的修改。2005年修正《建築技術規則》,規範八層以上住宅建築須設置兩座安全梯。加強設置逃生與消防設施,間接地調高了住宅公設比。」
新房子公設比為何總是30%起跳?
吃
退了就沒資源